Company Logo
SIGN UP LOGIN

52 Cesar Place, Hamilton (Ancaster), ON L9G0G3

$1,499,999
  • Main Photo

2 Total Photos [Click to View All]

Active
BEDS4 BATHS2 full 1 partial MLS#X12403287
STATUSActive PROPERTY TYPEResidential - Single Family

Property Description

PRIVATE LENDING AVAILABLE BY THE BUILDER. 2.5% INTEREST, 10% DOWN. FULLY OPEN Brand New 2STOREY homes on Executive lots in the Heart of Ancaster, tucked away on a safe & quiet cul de sac road. This particular 2storey holds 2535 sf. with 4 beds, open living space and 2.5 baths with main floor laundry for easy living Loaded with pot lights, granite/quartz counter tops, and hardwood flooring of your choice. Take this opportunity to be the first owner of this home and make it your own! Seconds to Hwy Access, all amenities & restaurants. All Room sizes are approx, Changes have been made to floor plan layout. Built and can be shown. (id:52350)

52 Cesar Place | MLS# X12403287

This single family home located at 52 Cesar Place, Hamilton (Ancaster), ON is currently listed for sale with an asking price of $1,499,999. This property has 4 bedrooms and 2 full and 1 partial baths.

Property Features

Property Type: Residential - Single Family
Basement: Unfinished, Full
Basement: Yes
Cooling: Central air conditioning
Heating: Forced air, Natural gas
Lot Size: 44 x 100 FT
Stories: 2.0
Taxes: $0

Amenities

Stone
Stucco

Feature Descriptions

Board Association: Toronto Regional Real Estate Board
Days on Site: 201
Exterior: Stone, Stucco
Features: Cul-de-sac
Foundation: Concrete
Lot Dimensions: 44 x 100 FT
Parking: Attached Garage, Garage
Parking Spaces: 4 car attached
Parking Total: 4
Property Sub Type: Single Family
Sewer: Sanitary sewer
Structure Type: House
Title: Freehold
Utilities: Sewer, Electricity
Water: Municipal water

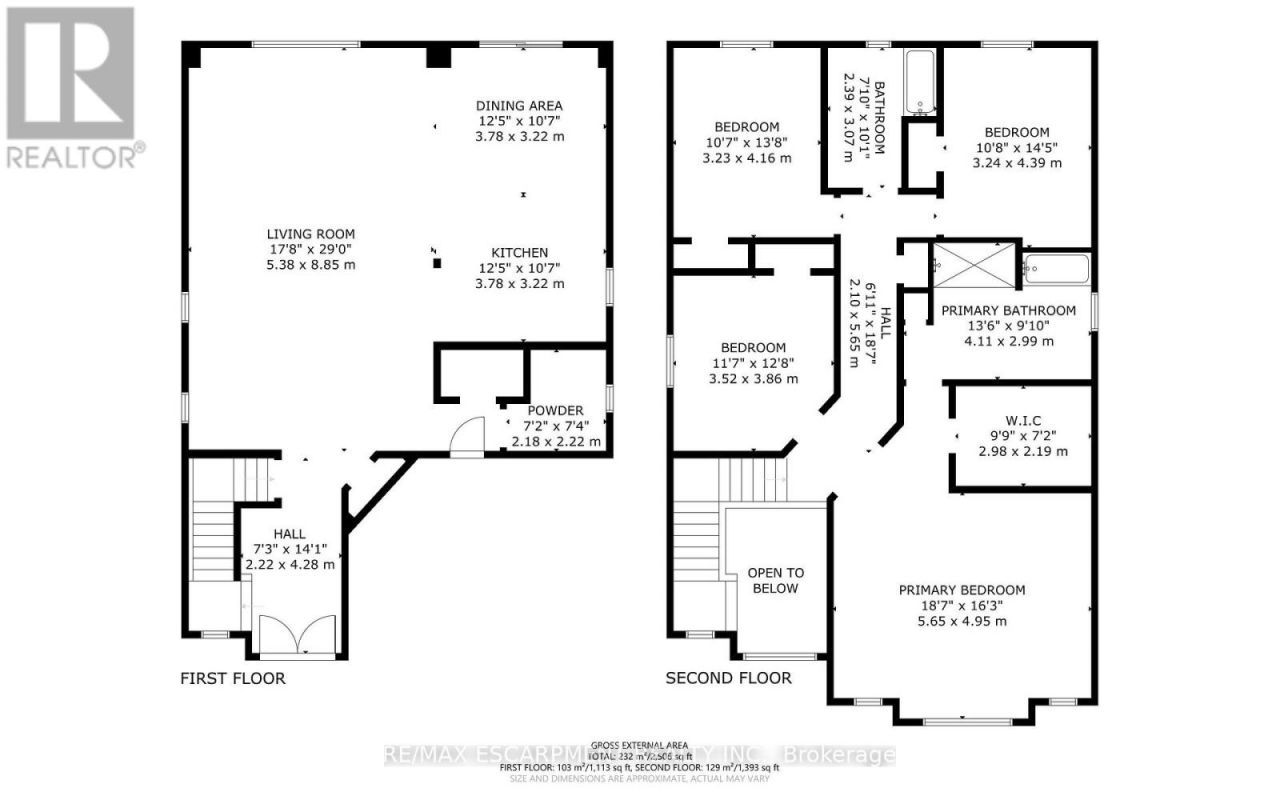
Room Sizes

Dining room: 3.96 X 3.73 Level - Main level
Kitchen: 6.48 X 3.89 Level - Main level
Family room: 5.08 X 4.57 Level - Main level
Bedroom: 4.09 X 3.61 Level - Second level
Bedroom: 4.04 X 3.61 Level - Second level
Bedroom: 4.309 X 3.63 Level - Second level
Primary Bedroom: 5.61 X 4.67 Level - Second level

Listed By / Shown By

Listed By

Agency Name: RE/MAX ESCARPMENT REALTY INC.
Agency Phone: 905-575-5478

Shown By

Agency Title: Solid Rock Realty Inc
Agency Phone: 855-484-6042

IDX logo

Estimate Your Payment

Estimated Payment

$ 3,775.85 per month $3,338.35 Principal & Interest $0.00 Property Tax (data not provided by mls) $437.50 Homeowner's Insurance

Change Payment Information

%
years/fixed
yearly
yearly (est.)
(Payments are an estimate and may vary by lender)

Login to My Homefinder